Are you dreaming of having your own backyard chickens but don’t know where to start? Look no further! With free printable chicken coop plans, you can easily build a cozy and functional coop for your feathered friends. Whether you’re a beginner or a seasoned DIY enthusiast, these plans will guide you through the process step by step. Get ready to embark on a fun and rewarding project that will bring joy to both you and your chickens!
Creative Coop Designs
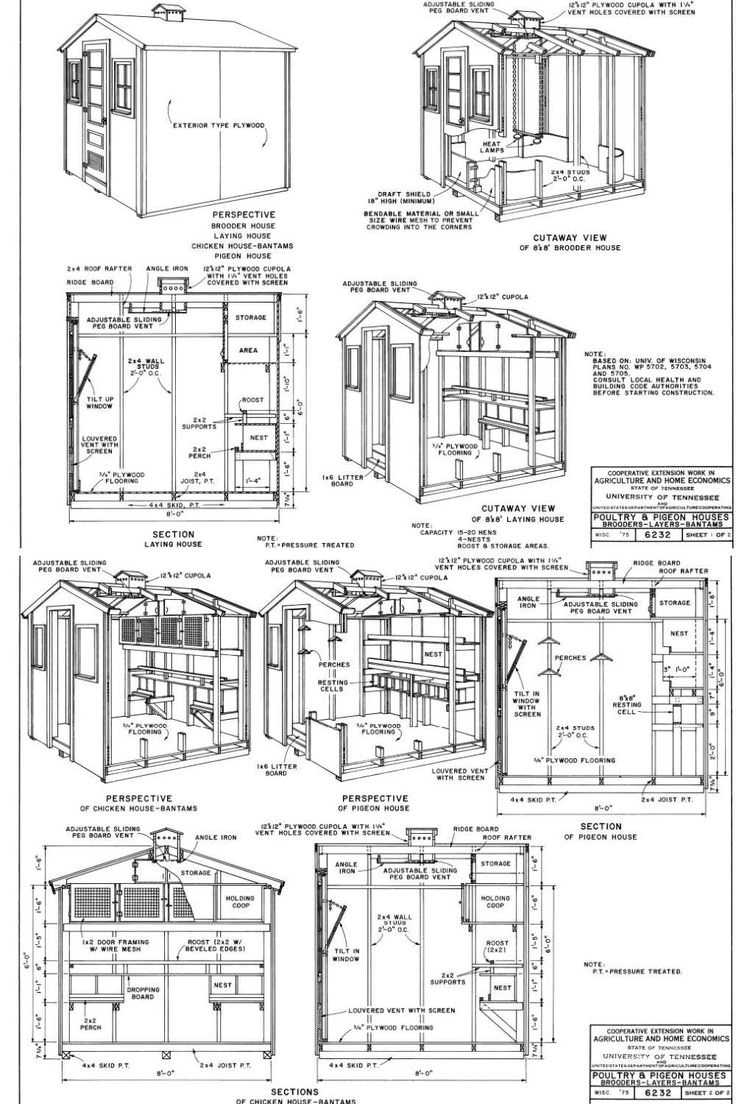
When it comes to chicken coop plans, the possibilities are endless. You can choose from a variety of creative designs, from traditional barn-style coops to modern and sleek structures. Consider factors such as the number of chickens you plan to keep, the available space in your backyard, and your personal style preferences. Whether you prefer a colorful and whimsical coop or a more rustic and natural look, there’s a design out there to suit your tastes.
Once you’ve selected a design, gather your materials and tools, and get ready to start building! Follow the detailed instructions provided in the free printable plans, making sure to take your time and double-check your work as you go. With a little patience and effort, you’ll soon have a beautiful and functional chicken coop that both you and your feathered friends will love. Don’t forget to add personal touches such as decorative nesting boxes, a charming paint job, or a custom sign with your chickens’ names – the possibilities are endless!
Tips for Success
Building a chicken coop can be a fun and rewarding experience, but it’s important to approach the project with the right mindset. Before you begin, take the time to carefully review the plans and familiarize yourself with the steps involved. Make sure you have all the necessary tools and materials on hand, and don’t be afraid to ask for help if you need it. Building a coop is a great way to bond with family members or friends, so consider turning it into a group project for added fun and camaraderie.
As you work on your coop, remember to prioritize functionality and safety. Ensure that the coop is well-ventilated, predator-proof, and easy to clean, to provide a comfortable and secure environment for your chickens. Consider adding features such as roosts, nesting boxes, and a secure door to make life easier for both you and your feathered friends. With a little care and attention to detail, you’ll soon have a beautiful and functional chicken coop that will serve you well for years to come. Happy building!



